Descripción
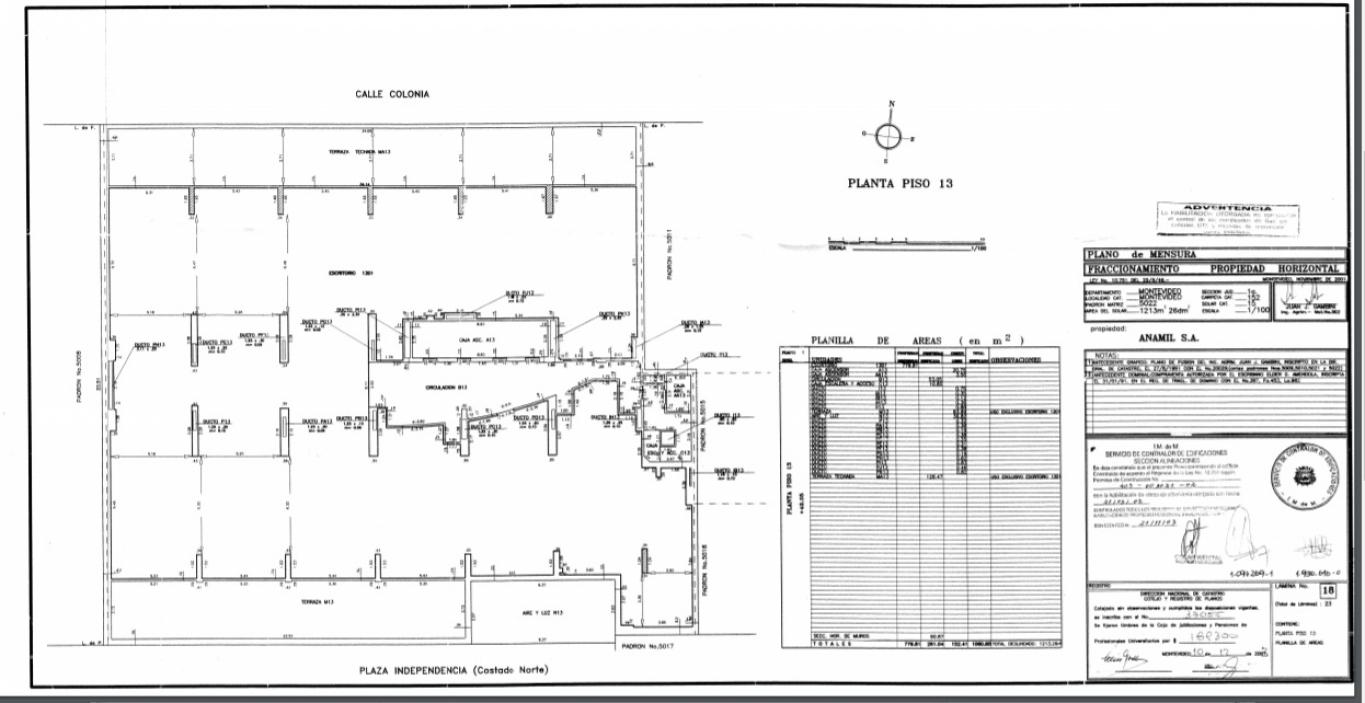
Cómodas y modernas instalaciones en los 1030 metros cuadrados edificados con un piso flotante con más de 5 mil metros de cable estructurado, permiten que se pueda diseñar la oficina con mucha comodidad teniendo la posibilidad de colocar la estación de trabajo donde mejor aplique. La estructura de la Oficina con el formato de loft, ayuda a no tener grandes columnas o paredes que corten la visual a la ciudad o al puerto de Montevideo. Las paredes y techos con textura para absorber el sonido permiten que puedas trabajar en cualquier parte del loft sin ruidos en la comunicación. Por último, las divisiones de cristal en varias partes de la oficina, la sala de directorio, las salas anexas, los baños con muebles importados y las diferentes estaciones de trabajo con material de primera calidad, completan un marco agradable y delicado.Metros cuadrados disponibles
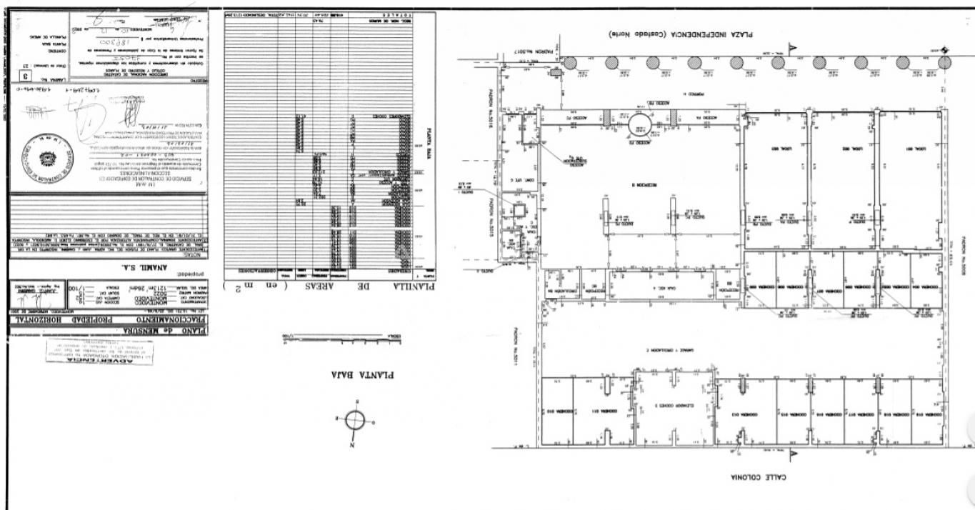
Metros cuadrados construidos 800,84 + 137,28 (terrazas cerradas)
Metros cuadrados de terraza abierta 91,12 (Deck)
Total Metros cuadrados actuales en el PH 1030
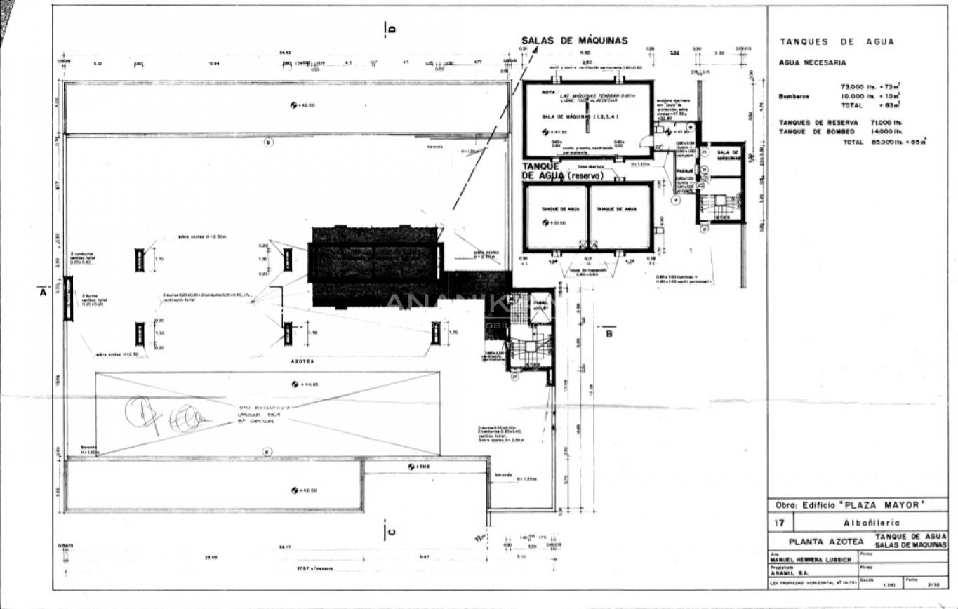
Posibilidad de ampliar la edificación, construyendo en la azotea: 250 m2 (existe el permiso de copropietarios en Asamblea)
Total Metros cuadrados disponibles 1280 (construidos y a construir)
Cocheras
Un piso completo de estacionamiento en la planta baja del edificio (14 + 2 cocheras, total 16) en el cual se pueden aparcar en forma ordenada hasta 25 autos (existe la experiencia propia de ampliar el estacionamiento a 25 vehículos con la contratación de un acomodador de autos).
El estacionamiento en esta zona comercial y financiera de la ciudad está muy valorado y establece una ventaja competitiva frente a otras oficinas del mismo rubro. Llegar a tu oficina y dejar el vehículo en el mismo Edificio implica una comodidad insuperable y le agrega valor a la propiedad. 320 m2 aproximados
Arquitecto
Arq. Manuel Herrera Lussich
Fecha de construcción
Noviembre/2003
Condiciones comerciales:
1- Alquiler total de la oficina amoblada USD 15.000 contrato mínimo a 5 años
Otras opciones
Venta total de la oficina USD 1.800.000
Venta total de los 16 garajes USD 500.000
Alquiler de cada garaje USD 100 cada uno.
Características de la propiedad
Monoambiente
Superficie: 1.030,00 m²
Garage: 16
Año de Construcción: 2003
- Año de construcción: 2003

Conozca +
Consultar
Coordinar Visita
Recomendar